
波动筛分机概述:
波动筛煤机是火力发电厂输煤系统中的筛分设备。原煤经过筛分,符合粒度要求的小颗粒煤,在筛机筛轴旋转力作用下被排到筛面下,直接由带式输送机送走;不符合粒度要求的大颗粒煤,在筛面上经一排按同一个方向旋转轴作用向前运动,被送入碎煤机中破碎后,再由带式输送机送走。波动筛可防止一般振动筛分机械的堵塞现象,适用于电厂原煤中含水份较大的工况下运行。
BS型变倾角等厚波动筛,筛面倾角依次变化,角度逐渐变小,实现快速等厚筛分,不易堵筛,适用于大水分粘煤的筛分。
BS型波动筛,筛面处于同一平面,整个筛面呈一个角度,结构简洁,筛分物料流畅,占地空间小。
10218旭彩网 河南奥创机械自上世纪80年代开始生产筛分设备,先后研制了波动筛、谐波筛、筛轴平面筛、振动概率筛等,已生产各类筛分设备1千余台。变倾角等厚滚轴筛是集所有形式滚轴筛优点于一体的新型筛机,其性能更优越,对物料的适应能力更强。
波动筛分机工作原理:
10218旭彩网 本机是利用机械方法,通过多排并列在转子上在特制筛片构成多变的筛孔组成其筛面,转子以同向等速做周向旋转,使其筛面上煤料借助桃形筛片交错回转,并以波动形式向前运动,从而达到高效筛分目的。
随着经济的快速发展,现代工业的大型化系统化,科技日益更新,人们对矿石的需求量也越来越大。但同时,由于矿产的过度开发使得岩石趋向低品质化。为此,针对这种易碎裂,抗压强度中等的矿材,需要一种适合的筛分机筛分。波动筛无论其功能还是工作的稳定性和效率,都是不二的选择。它将会是未来水泥矿石等矿业筛分体系的主流设备。在确保筛分效率和筛机工作性能的同时追求大型化和系列化也是一个重要的发展方向。
波动筛分机结构特点:
本产品具有体积小、筛分效率高、出力大、且能自动清理筛面、不堵筛、适应性广、筛机无振动、无粉尘、噪声小等特点。本机具有旁路装置,可实现自动控制。

BS系列波动筛分机是一种为未经筛选的原煤筛分设计的专用筛分设备,用于碎煤机之前,可将未经筛选的各种不同规格的颗粒物料分级筛分,得到所需的出料粒度,以满足电站的需要。本产品是火力发电厂输煤系统的重要设备之一,在冶金、化工、建材、煤炭等系统也可广为利用.
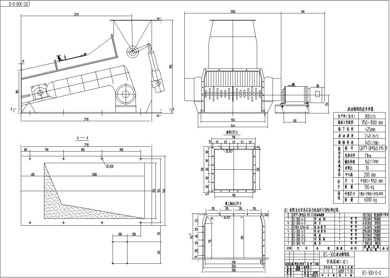
筛分机技术参数:

操作维护及检修:
一、工作时,首先开车,然后加入待筛分物料,否则会造成机器损伤,降低机器使用寿命。
二、在机器使用过程中,每次开机前必须检查机器内是否存有物料。
三、应先开机,后给料。停机时,应先停料,后关机。确保停前机器内没有物料。
四、禁止带负荷开机。
五、每三个月向轴承内部加注润滑油一次。
六、机器投入使用后三个月检修一次。
七、当筛片受损严重后,不能达到筛分目的时,应及时更换新的筛片。
河南奥创机械设备结构图纸、价格计算,欢迎实地考察!
订购网址请登录河南奥创机械有限公司官方网站:netmop.com 24小时服务热线:13353676726