移动式小型滚筒筛砂机生产厂家
移动式小型滚筒筛砂机厂家展示-圆筒筛分设备 生产制造 非标定制 整机质保 13353676726

滚筒筛概述:
滚筒筛的主体结构是筛分筒,它是由若干个圆形状筛网组成,整体与地平面成倾斜状态,外部被密封隔离罩所密封,以防止污染环境。通过变速减速系统使筛分筒在一定转速下旋转, 物料自上而下通过筛分筒得到分离,细料从筛分筒前端下部排出,粗料从筛分筒下端尾部排出。滚筒筛(圆筒回转筛)可设有梳形清筛机构,在筛分过程中可通过梳 形清筛机构与筛分筒的相对运动,达到对筛体不问断清理的效果,使筛分筒在整个工作过程中始终保持清结、不粘、不堵、不影响筛分效果。
滚筒筛根据不同分级要求,其分级级数一般从细到粗为l~4节,物料从细到粗分别从节到一节筛网筛出,大于一节筛网孔的物料从出料口排出。滚筒筛(圆筒回转筛)在使用过程中,运转缓慢均匀、冲击振动很小、工作平稳、其安装简单,有时甚至不需要专门的基础,可以直接放置于平整的地面或楼板上及料 仓下。该机易于密闭收尘、维修小、维修简单、使用寿命长。是耐火材料、煤、河砂分级、砂石块分级中经常使用的设备。
滚筒筛性能特点:
1、物料适应性广:
滚筒筛广泛应用于各类物料筛分,无论是劣质煤、煤泥、还是烟煤以及其它类物料,都可顺利进行筛分。
2、进料方式简单多样:
我公司研制的滚筒筛进料口可根据现场实际设汁,无论是皮带、漏斗或其它进料方式,不用采取特殊措施,都可以顺畅进料。
3、筛分效率高:
设备可设有梳型清筛机构,在筛分过程中,不管进入筛分筒的物料多脏、多杂都可以筛分,从而提高了设备的筛分效率。
4、滚筒筛筛分量大、易于大型化:
相同尺寸下,圆面积比其它形状的面积都大,因此其筛分有效面积就大,使物料能充分接触筛网,因而单位时间内筛分量就大。又因其结构简单,布置方便,技术新颖而成熟等特点,极易大型化。
5、滚筒筛自身能耗小:
我公司研制的滚筒筛电机功率小,是其它筛型的二分之一到三分之一,处理相同量物料而运行时间仅为其它筛型的二分之一,因此能耗低。
6、滚筒筛工作环境好:
整个筛分简可以用密封隔离罩所密封,彻底清除了筛分循环过程中的粉尘飞扬,块状飞溅等现象,避免了对工作环境的污染。
7、滚筒筛噪音低:
滚筒筛运行中,由于回转筛速度小,并且有密封隔离罩与外界隔离,使噪音无法传递到外部,从而降低了设备噪音。
8、滚筒筛使用寿命长、维修量小:
滚筒筛是若干个圆环状网组成,其总筛分面积远远大于其它筛型的筛分面积,再加上筛分效率高,设备运行时间段短,故而使用寿命较长、易损件少、维修量小。
9、滚筒筛检修方便:
滚筒筛密封隔离上罩可以拆开,拆开后不影响机器正常运行,并且检修非常方便。
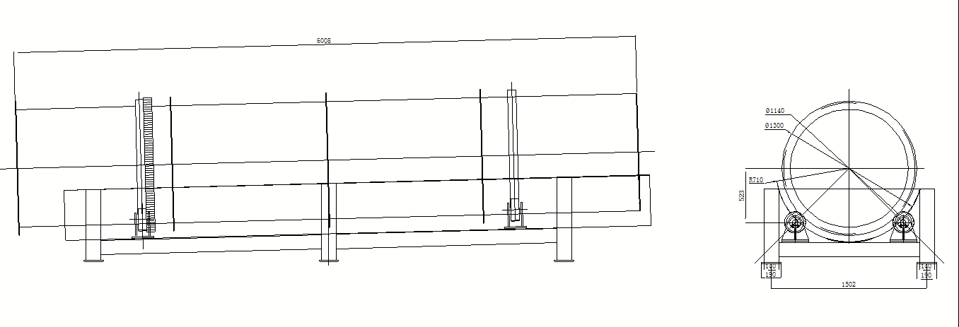
滚筒筛结构图:

滚筒筛安装:
1、预埋钢板。安装前应按设备安装图的要求预埋钢板,要求预埋钢板的上平面位于同 一平面上。安装所需的预埋钢板、地脚螺栓等均由安装单位自备。
2、筛体的安装。根据设备进料口、出料口的位置布置,对筛体安装位置进行确定。
3、安装基础支架。将筛体两端轴承座安装在基础支架上,并将筛体安装角度调整至设 计角度,进行固定。
4、连接进料口和出料口。
5、安装网转筛体。
6、用于转动回转筛分筒,不得有阻力过大或卡死现象,否则应查清原因加以调整。
7、滚筒筛出厂后,如超过6个月才安装,则安装前必须将大轴的轴承拆下清洗,注入新 润滑脂(2号锂基润滑脂)。

滚筒筛调试:
一、滚筒筛调试前的准备工作:
1、滚筒筛各部件安装完并检查合格后,可进行试运转。试运转前应该祥细检查各部件是否安装正确,各紧固件是否牢靠,筛体周围是否有妨碍滚筒筛运行的障碍物。
2、通过手动盘车旋转筛分筒,观察有无卡死、磨擦现象,若有进行调整。
3、检查各轴承座、变速箱应润滑良好,变速箱油位当。
4、电源接头应牢固可靠,绝缘良好,接地正确。
二、滚筒筛空载试车
1、点动电机控制按钮,检查电机转向应与滚筒筛所示转向一致。
2、起动设备运转4~6小时,观察回转筛运行情况,若发现异常声响或其它现象,应及时停机检查,找出原因,排除故障。
滚筒筛试运行4~6小时应检查下列项目:
1、大轴轴承温度,要求温度不超过75℃,温升不超过45℃。
2、各处紧固螺栓的紧固情况,发现松动应及时拧紧。
3、检奁电机、转动部件温升情况,应在正常范围之内。
三、滚筒筛投料:
1、在筛分机处于运转平稳状态下,启动进料及出料设备进行投料试车。
2、正常出料后关闭密封隔离罩(正常运行时,密封隔离罩应始终处于关闭位置)。
3、检查出料粒径和有无漏料及扬尘情况。
4、运转半小时后对各部件进行仔细检查,发现问题及时处理。
5、工作过程中应经常检查运行情况,若发现运行不正常或有异常声响,成及时停机检查,找出原因,排除故障。
滚筒筛操作及维护:
滚筒筛运行可靠,维护量小,下面对运行中应注意的几点问题简述如下:
1、开车时必须先开启回转筛,后再开启给料设备,停车时相反。
2、运行前三天,要每天对滚筒筛紧固件进行检查,如有松动要及时紧固,以后则可定 期(每周或半月)对回转筛紧固件进行检查及处理。
3、轴承座、变速箱应定期检奁润滑情况,并及时加油和换油。大轴轴承采用2号锂基润滑脂。正常情况下,每两月加注一次润滑脂,加注量不宜过多,否则易引起轴承过热。各处轴承应每年清洗检查一次。
滚筒筛厂家提示:请通过正规渠道购买奥创滚筒筛,以保障您的合法权益!
订购网址请登录河南奥创机械有限公司官方网站:netmop.com 24小时服务热线:13353676726


