选煤厂脱水斗式提升机各部件安装流程
选煤厂脱水斗式提升机
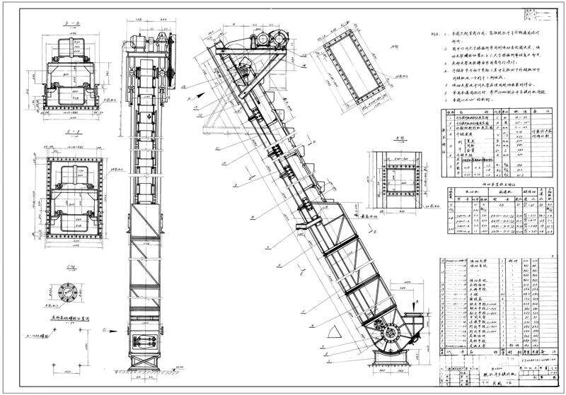
1)机壳安装
(1)根据总图,先从尾部支架和机尾开始安装,然后一次往上装封闭节段、敞开节段、头部节段、以及机头部分和驱动支架等。脱水斗式提升机一般需穿过几层楼板,因此安装时应特别注意,使各支架均匀地承担荷重。
(2)脱水斗式提升机各节段的连接应对准中心线,倾斜角度和导轨间距,根据图纸严格校准,并临时固定在楼板孔中,最后用螺栓连接,并固定各节段。
10218旭彩网
(3)各支架在楼板或基础上的安装,应根据总图进行。当各支架配置就绪并校准后,既可浇灌混凝土。在浇灌层固结后,用螺栓固定支架,待10~20天后,可将支架进行焊接,将临时固定件拆除。

2)头部组件安装
头部组件经安装和调整后,应符合下列要求:
(1)头部组件主轴能自由转动。
(2)轴承盖固定后,应保证轴瓦与轴之间的正常工作间隙。
(3)两驱动星轮的对应边应在同一平面上 。
10218旭彩网
(4)紧链装置的导轨,应互相平行,其两轨面在同一平面内,丝杠在螺母内顺利转动,但不许松动。

3)尾部组件的安装
尾部组件轴的中心线应保持水平,并且垂直于尾部节段的侧板,安装后的轴应能自由转动,不允许有抱轴现象或其他毛病。
挂设斗链 斗链在安装前应进行检查,凡有损伤处,均应维修。斗链的装配工作是单独进行的,全部装好后再往机身挂设。 斗链的挂设步骤如下:
1)先用绳索将斗链牵引到主轴的星轮上,并将斗链挂在星轮上。
2)启动提升机,使星轮主轴运转。
3)电动机反转,使斗链反向运转,达到位置。
4)在点1处将斗链断开,将斗链下段临时固定,斗链上段重新与等待安装的斗链相接。
10218旭彩网
5)重新启动提升机,使星轮主轴正转,将斗链运转到后,在点1和2处将斗链接上。斗链安装前,应将紧链装置放在极限位置,使主动星轮与尾部滚轮的中心距为最短;斗链安装后,再利用紧链装置,使斗链处在张紧状态。斗链与两条导向角钢的侧面间隙应保持相等,并使链板的铰链动作灵活。
河南奥创机械设备有限公司专业生产各种输送设备,振动设备商家
订购网址请登录河南奥创机械有限公司官方网站: netmop.com 24小时服务热线:13353676726


